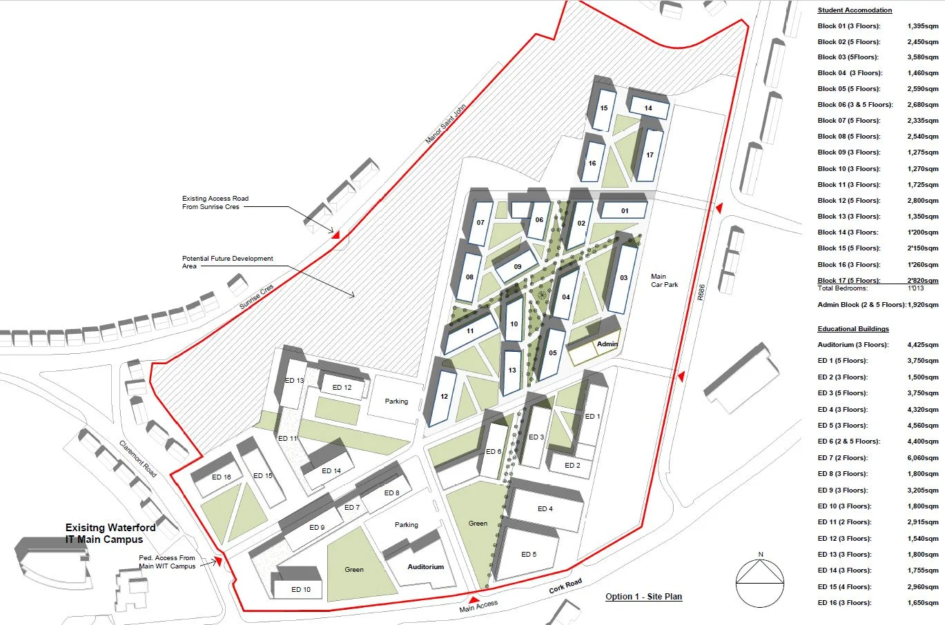
Student Housing Feasibility Study
This Feasibility Study was carried out by Moloney O’Beirne for a Main Campus Expansion at Waterford Institute of Technology, Cork Road
Site: 38 Acres
This was a study for a mixed use Campus extension including Lecture Theatres, Student Accommodation & Miscellaneous Educational.
Date: June 2018
